Настенный электрический котел Zota LUX-X 30
Артикул:НС-1544111
Описание
Электрокотел Zota LUX-X - 30 предназначен для отопления помещений, бытового (дачи, коттеджи, загородные дома) и производственного назначения площадью до 300 кв. м.. При установке бойлера косвенного нагрева - и для горячего водоснабжения. Для работы платы управления (при наличии встроенной автоматики) электрического котла требуется его подключение к электрической сети 380 В.
Особенности и преимущества Zota LUX-X 30:
- Информативный графический дисплей
- Система самодиагностики неисправностей с выводом кодов ошибок на экран и записью во внутреннюю память контроллера
- Управление по температуре теплоносителя и температуре воздуха
- Погодозависимое регулирование
- Управление циркуляционным насосам
- Управление приводом трехходового переключающего клапана ZOTA BPV, Fugas для организации работы контура ГВС
- Возможность самостоятельного обновления программного обеспечения
- Возможность подключения внешнего комнатного термостата (по “сухому контакту”)
- Дистанционное управление котлом с мобильного телефона или персонального компьютера при помощи GSM / GPRS / Wi-Fi или LAN модуля (опция)
- Дистанционное управление котлом по цифровой шине с использованием протокола OpenTherm
- Возможность подключения внешнего ИБП для питания цепей контроллера, насоса и клапана ZOTA BPV, Fugas
- Блоки ТЭН из нержавеющей трубки диаметром 7,4 мм специальной конструкции с пониженной ваттной нагрузкой
- Ротация ступеней мощности - выравнивание ресурса ТЭНов
- Расширенный диапазон питающего напряжения
- Защита блока управления от повышенного напряжения
- Возможность использования незамерзающих теплоносителей
- Теплоизоляция корпуса котла.
Характеристики
Технические характеристики
Тип котла
электрический
Мощность
30 кВт
Кол-во контуров
Отапливаемая площадь
300 кв. м.
Бренд
Страна бренда
Россия
Страна сборки
Установка
Конденсационный
Нет
Способ установки
Настенный
Ступени мощности
9
Энергонезависимый
Нет
Встроенный расширительный бак
Нет
Встроенный циркуляционный насос
Нет
Температура теплоносителя, °С
20 — 85
Модель котла
Zota LUX-X
Гарантийный срок
24 мес.
Производительность и расход
КПД %
99
Макс. давление воды в контуре отопления, бар
3
Безопасность
Защита
автодиагностика, защита от перегрева
Комфорт
Управление
электронное
Особенности
Дисплей
Дополнительная информация
Объем теплоносителя в котле 11 л.
Цвет
белый
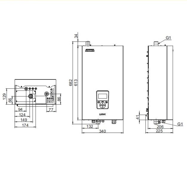
Подключение и габаритные размеры
Патрубок подключения контура отопления
1 1/4"
Электропитание
380-420/3/50
Длина
30.8 см
Ширина
34 см
Высота
74.7 см
Вес
29 кг
Отзывы
Похожие товары
Электрический настенный котел ZOTA MK-S 24 кВт
В наличии
Начислим +1 150 бонусов
Оплачивайте повторные заказы за счет бонусов, полученных за предыдущие заказы
80 520 Р
Настенный электрический котел Baxi Ampera Pro 24
В наличии
Начислим +1 144 бонуса
Оплачивайте повторные заказы за счет бонусов, полученных за предыдущие заказы
80 070 Р
Настенный электрический котел E.C.A. Arceus CH 18
В наличии
Начислим +1 153 бонуса
Оплачивайте повторные заказы за счет бонусов, полученных за предыдущие заказы
80 696,33 Р
-7%
Настенный электрический котел Zota MK-X 15 Plus
В наличии
Начислим +1 062 бонус
Оплачивайте повторные заказы за счет бонусов, полученных за предыдущие заказы
79 900 Р
74 307 Р
-7%
Настенный электрический котел Zota MK-X 14 Plus
В наличии
Начислим +1 062 бонус
Оплачивайте повторные заказы за счет бонусов, полученных за предыдущие заказы
79 900 Р
74 307 Р
-5%
Электрический котел ЭВАН Practic-22-24
В наличии
Начислим +1 096 бонусов
Оплачивайте повторные заказы за счет бонусов, полученных за предыдущие заказы
80 730 Р
76 694 Р
Настенный электрический котел E.C.A. Arceus ST 27
В наличии
Начислим +1 154 бонуса
Оплачивайте повторные заказы за счет бонусов, полученных за предыдущие заказы
80 792,79 Р
Настенный электрический котел Лемакс PROPLUS-18
В наличии
Начислим +1 134 бонуса
Оплачивайте повторные заказы за счет бонусов, полученных за предыдущие заказы
79 410 Р
Электрический настенный котел ZOTA MK-S 33 кВт
В наличии
Начислим +1 160 бонусов
Оплачивайте повторные заказы за счет бонусов, полученных за предыдущие заказы
81 230 Р
-7%
Настенный электрический котел Zota MK-X 18 Plus
В наличии
Начислим +1 080 бонусов
Оплачивайте повторные заказы за счет бонусов, полученных за предыдущие заказы
81 300 Р
75 609 Р






























